Status / Sold
On behalf of the Administrators
For Sale – HMO INVESTMENT/ 4-BEDROOM FAMILY HOME – 94 Oriel Road, Portsmouth, Hampshire, PO2 9EQ
• Capable of being a HMO or a 4-Bedroom Family Home
• Large rear garden
• Scope for improvement
• Convenient location
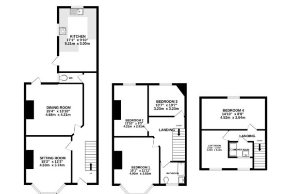
Accommodation
Situated in the popular residential location of North End, sits this impressive Victorian end of terrace four bedroom family home, which is offered with no forward chain. The property is conveniently located within walking distance of the highly regarded London Road, where local restaurants and amenities can be found. The internal accommodation comprises; sitting room (currently used as a bedroom), dining room (currently used as a bedroom), kitchen, downstairs WC, four good sized bedrooms split over two floors, bathroom and separate shower room. The property further benefits from a large rear garden and UPVC double glazing throughout.
Location
Conveniently located in the North of the city with rapid access out for commuters. Nearby London Road provides comprehensive shopping facilities and Alexandra Park and the Mountbatten Centre are close by. Bus services link down to Southsea and out of the city.
Council Tax
Portsmouth City Council TAX BAND D £1,882.35 for the year 2022/2023
Services
Gas, water, electricity and mains drainage are connected. Please note that none of the services or appliances have been tested by SIA Group.
Location / 94 Oriel Road, Portsmouth, Hampshire, PO2 9EQ
Contact Details
Lewis Proudley
Property Appraiser
Telephone +44 xxxxxxxxxx



